Разметка игрового поля БОЛЬШОЙ ТЕННИС
Код
товара: spt0013895
Разметка игрового поля БОЛЬШОЙ ТЕННИС
Вы можете добавить необходимые товары в корзину и сформировать коммерческое предложение в PDF формате.
25 лет
на рынке
на рынке
Собственное
производство
производство
100 000 +
товаров
товаров
Доставка по
России и СНГ
России и СНГ
Цены
Описание
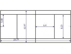
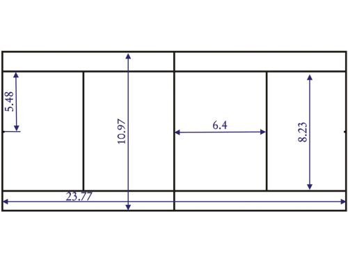
В игровых видах спорта большое значение имеет разметка площадки. Чтобы проводить тренировки и соревнования по теннису также требуется площадка с правильно нанесенной разметкой. Мы профессионально подходим к вопросу по нанесению разметки на площадки и залы с соблюдением всех норм. Если площадка имеет параметры, не совпадающие со стандартными, мы выполним разметку, максимально сохранив необходимые пропорции и зоны.
Особенности нанесения разметки для тенниса:
• Вся разметка выполняется только белым цветом.
• Ширина линий – 5 см.
• Задние линии имеют ширину 10 см.
• Единый размер для корта для одиночной игры, установленный ITF - 23,77х8,23 метра, для парных игр – 23,77х10,72 метра.
• Сетка расположена посередине корта.
• Линии подачи размещают на расстоянии 6,4 метра от сетки, она проходит параллельно задним линиям.
Для проведения игр и тренировок наш магазин предлагает купить различные спортивные снаряды, атрибуты для игры и аксессуары по приемлемым ценам.
Особенности нанесения разметки для тенниса:
• Вся разметка выполняется только белым цветом.
• Ширина линий – 5 см.
• Задние линии имеют ширину 10 см.
• Единый размер для корта для одиночной игры, установленный ITF - 23,77х8,23 метра, для парных игр – 23,77х10,72 метра.
• Сетка расположена посередине корта.
• Линии подачи размещают на расстоянии 6,4 метра от сетки, она проходит параллельно задним линиям.
Для проведения игр и тренировок наш магазин предлагает купить различные спортивные снаряды, атрибуты для игры и аксессуары по приемлемым ценам.
Характеристики
|
Страна
|
РОССИЯ |
|
Наличие
|
Под заказ |
|
Расход материала
|
5кг |
|
Вид
|
разметка |
|
Объем груза (м3)
|
0,05 |
|
Вес груза (кг)
|
5 |
Внешний вид товара, характеристики и комплектация, могут отличаться от представленных на сайте.
Доставка
Мы осуществляем доставку по всей территории России и странам СНГ.
В зависимости от Вашего региона, можно выбрать один из доступных способов доставки:
- Курьер;
- Собственный транспорт по Москве и Московской области;
- Транспортная компания;
- Самовывоз.
ВАЖНО! При заказе доставки и условии наличия товара на складе доставка осуществляется в течение 1 недели! Доставка до подъезда Заказчика. Разгрузка не предусмотрена!
Подробнее о вариантах доставки.
Оплата
Минимальная сумма заказа составляет 50 000 рублей (есть исключения, информацию уточняйте у менеджеров).
Оплатить заказ, можно двумя способами:
- Банковская карта;
- Безналичный расчёт.
Подробнее о вариантах оплаты.
Отзывы
Задать вопрос
Категории с этим товаром:
Задать вопрос