Разметки для игровых площадок
Для проведения тренировок, игр и соревнований по таким видам спорта, как баскетбол, волейбол, теннис и др. необходимо купить разметку поля – специальные обозначения, которые наносятся на пол или землю. Эти обозначения разграничивают пространство в соответствии с правилами конкретной игры: показывают размер площадки, а также линии (центральные, штрафные, трёхочковые, замены и т.д.).
В интернет-магазине SPORTS-TECH вы можете купить спортивную разметку по ценам розничным и оптовым, для самых разных видов спорта от проверенных и заслуживающих доверия производителей!
Как приобрести подобное оснащение?
Для покупки выберите из каталога нужную вам модель и добавьте её в корзину. К каждому виду есть подробные описания, кроме того, у нас можно приобрести разметку поля под индивидуальные параметры – для этого свяжитесь с нами, и мы примем ваш заказ, учитывая размеры вашего зала или площадки.
Виды предлагаемой продукции
На этой странице каталога представлены следующие типы разметок:
- Баскетбольная. Она предполагает нанесение на поверхность пола или открытой площадки линий границ поля (стандартный размер 28х15 м), центрального круга, центральной линии, ограничения, трёхочковой и штрафной. Изготавливается в соответствии с правилами, принятыми FIBA.
- Для мини-футбола. Может быть, в зависимости от размеров зала, от 38х18 м до 42х22 м. Толщина линий обязательно должна быть не менее 5 см. Включает в себя центральную и отметку центра поля, дугообразные линии вокруг ворот, штрафную площадку, и отметку для пробивания пенальти.
- Волейбольная. Стандартные размеры поля – 18х9 м. При нанесении обозначаются границы поля и линии атаки (на расстоянии 3-х м от сетки с двух сторон). Определяет границы свободной зоны вокруг основной игровой.
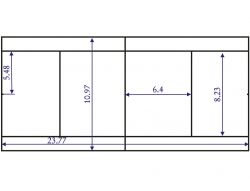
- Теннисная. Наносится в соответствии со стандартными размерами поля (23,77х8,23 м – для одиночной игры, и 23,77х10,72 м – для парной). Включает в себя боковые и задние, подачи, и центральную линию подачи.
- Для бадминтона. Определяет границы поля, равные 13,4х5,18 м для одиночной игры, и 13,4х6,1 м для парной. Состоит из линий: дальние подачи для одиночных/парных игр, средняя, боковые для подачи одиночных/парных игр, задняя. Все они имеют толщину 4 см.
- Для гандбола. Для гандбола также требуется нанесение особой разметки, которая включает в себя: границы поля (40х20 м), площади ворот, свободных бросков, 7-метровую по центру ворот, ограничения вратаря, центральную, и замены.
Наш каталог регулярно пополняется новыми видами оснащения для других видов спорта. Если вам нужна разметка для спортивного зала в школе или для открытой площадки нестандартных размеров, вы изготовим вам нужную на заказ.
Невысокие цены на предлагаемую продукцию
Наши цены на спортивную разметку позволят вам приобрести её с экономией для вашего бюджета. Также этому способствует возможность оптовой закупки. Оптовые расценки вы найдёте под каждой товарной позицией.
Надеемся на продолжительное сотрудничество и ждём ваших отзывов после покупки!